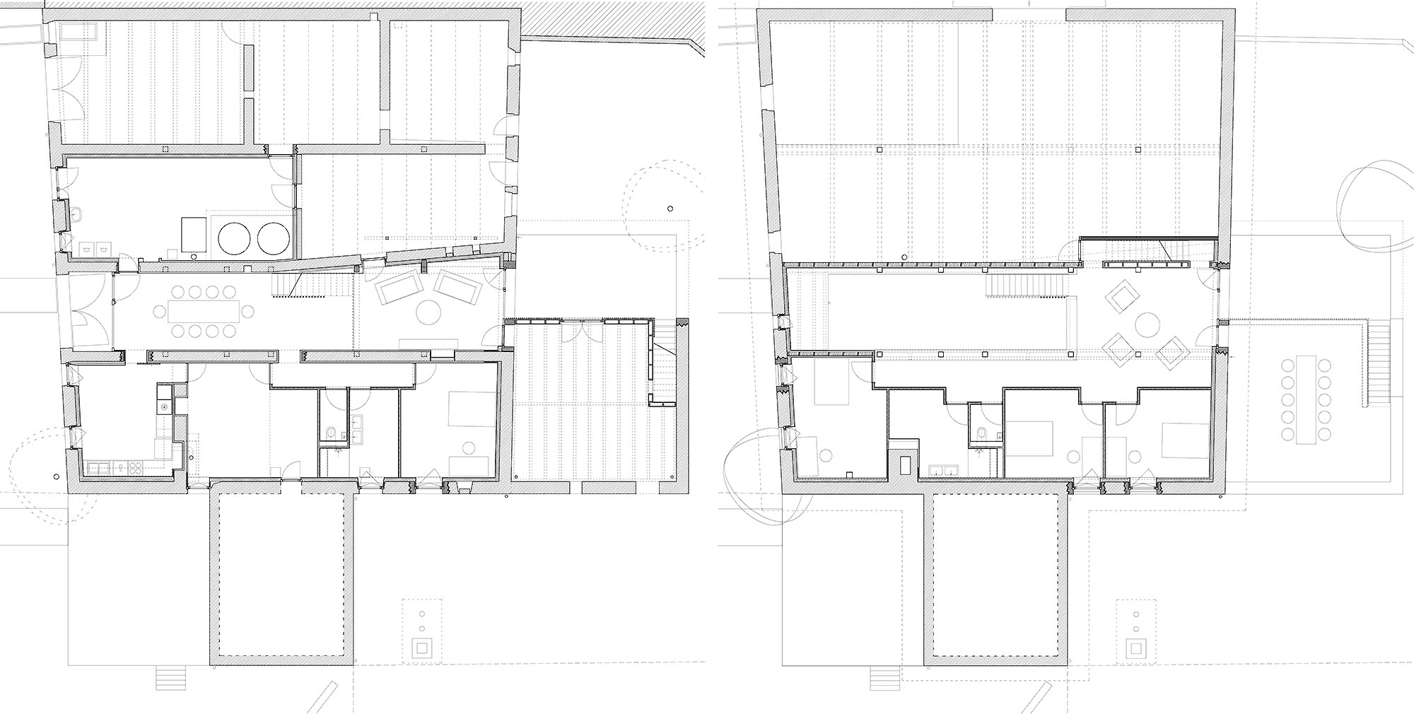
Mission avant projet pour la restructuration et la rénovation d’une ferme lorraine à Arches (88)
Programme : atelier, séjour double hauteur et mezzanine, cuisine, 5 chambres, terrasse, comble habitable Maîtrise d'ouvrage : privée Surface : NC Coût de l'opération : NC


